在之前的教程中,我們為大家講解了如何使用浩辰CAD機械2011軟件繪制二級齒輪減速器裝配圖,而在今天的CAD教程里,我們依然會帶來一篇減速器裝配圖的繪制教程,只不過,我們今天演示的是減速器剖面俯視圖的繪制方法。
1、使用浩辰CAD機械2011繪制齒輪剖面圖。由于齒輪剖面圖形對稱,因此我們可以使用浩辰CAD機械軟件繪圖工具中的【對稱劃線】命令來繪制(如圖1)。

圖1
2、以軸為基礎,使用浩辰CAD機械軟件繪制俯視圖減速器箱體外輪廓(如圖2)。

圖2
3、繪制箱體端蓋剖視圖并填充圖案。其中,我們可以使用浩辰CAD機械軟件繪圖工具中的【波浪線】命令來繪制剖面曲線,而軸承端蓋則可以使用【對稱劃線】來繪制(如圖3)。

圖3
4、繪制螺釘孔和銷釘孔:依次點擊浩辰CAD機械軟件的【構造工具】——【單孔】,在對話框中輸入相關數據,快速繪制螺釘孔和銷釘孔(如圖4)。

圖4
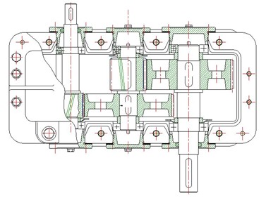
這樣,我們的二級齒輪減速器俯視圖就完成了繪制。從繪制效果來看,借助于浩辰CAD機械軟件的專業繪圖功能,此俯視圖較好的表現了減速器的結構,在構圖上也比較清晰,有興趣的讀者不妨下載浩辰CAD機械2011軟件進行實際體驗:http://www.gstarcad.com /cad_56_45.html。
